欢迎您来到机电设备采购平台!
首页 > 商业服务 > 设计 >

资阳市中心医肾病内科血液净化室空间改造工程方案设计的市场询价公告(第二次)

资阳市中心医肾病内科血液净化室空间改造工程方案设计的市场询价公告(第二次)

  • 收藏
  • 打印
  • 字小
  • 字大+
信息时间:
2025-11-05
招标文件下载

我院肾病内科血液净化室空间改造工程即将启动,******医院第一住院楼肾病内科血液净化室进行扩容,现面向市场开展设计费及工程预算费用市场询价,相关事宜公告如下

一、资格要求:

1、具有独立承担民事责任能力;

2、具有良好的商业信誉和健全的财务会计制度;

3、具有履行合同所必需的设备和专业技术能力;

4、有依法缴纳税收和社会保障资金的良好记录;

5、参加政府采购活动前三年内,在经营活动中没有重大违法记录;

6、具备法律、行政法规规定的其他条件;

7、本项目不接受联合体调研。

二、资质要求

1.具有工程设计行业乙级及以上资质。

三、报名内容

1.设计费及工程预算费用(清单报价);

2.公司资质。

四、报名时间及方式  

(一)报名时间:本公告自挂网公告日到2025年11月12日截止,公告截止日期后递交的报名资料无效。  

(二)报名方式:本次市场调研活动采用邮箱报名,不接受现场报名。

(三)1.报名资料按“三、《报名内容》”要求,将电子文档(盖章扫描件和可编辑版本)发送至******0[at]qq[dot]com。邮件名称:“XXXX项目名称+公司名称+联系人+联系电话”。 2.联系人:报名咨询:唐老师 028-******

******医院官网上发布。

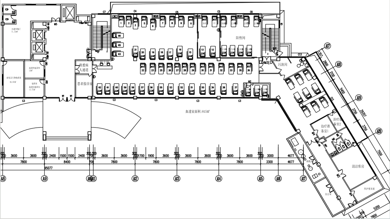
******医院肾病内科血液净化室空间改造工程项目情况(见附件)。

企业微信截图_******498980.png

资阳市中心医肾病内科血液净化室空间改造工程项目情况.docx

企业微信截图_******703256.png

新区分院行政服务楼施工图3.zip

水处理机改造要求.pdf

新区分院行政服务楼施工图.zip

新区分院行政服务楼施工图2.zip

查看项目详细信息

版权免责声明

【1】凡本网注明"来源:机电设备采购平台"的所有文字、图片和音视频稿件,版权均属于机电设备采购平台,转载请必须注明机机电设备采购平台,违反者本网将追究相关法律责任。

【2】本网转载并注明自其它来源的作品,是本着为读者传递更多信息之目的,并不代表本网赞同其观点或证实其内容的真实性,不承担此类作品侵权行为的直接责任及连带责任。其他媒体、网站或个人从本网转载时,必须保留本网注明的作品来源,并自负版权等法律责任。

【3】如涉及作品内容、版权等问题,请在作品发表之日起一周内与本网联系。

分享到朋友圈
一天内免费查看信息来源站点

分享成功后点击跳转

注册使用者、商机更精准
姓名:*
手机号:*
验证码:* 发送验证码 已发送(60s)
机构名称:
职位:
供应产品:

开通黄金会员,即可查看实时商机信息(30条/天)

每天提供100000+条招投标采购信息,随时掌握最新发布的商机,实时更新

开通地区选择
全国
浙江
黄金会员权益
查看信息(30条/天)
信息订阅(5组)
来源跳转验证(30次)
附件下载(部分正文涵盖)
铂金会员权益 (包含黄金会员权益)
查看信息(100条/天)
信息订阅(10组)
来源跳转验证(100次)
项目导出(100条)
附件下载(部分正文涵盖)
钻石会员权益 (包含铂金会员权益)
查看信息(无限制)
信息订阅(无限制)
来源跳转验证(无限制)
企业推荐
项目导出(1000条)
企业信息
标友圈
附件下载(部分正文涵盖)

抱歉,您当前会员等级权限不够!

此功能只对更高等级会员开放,立即提升会员等级!享受更多权益及功能

请扫码添加客服微信或拨打客服热线 0571-28951270 提升会员等级
订单创建成功,打开微信扫一扫完成付款

打开微信扫一扫完成付款

商品名称 暂无
订单编号 暂无
支付方式 微信支付
微信支付 ¥ 249
切换方式

切换到支付宝支付

关注微信
关注微信
关注App
关注App
微信客服
微信客服
返回顶部